1105/119 A'BECKETT STREET, MELBOURNE, VIC
Video
Description
Year Built: 2023
Rental:
The previous tenant was paying $680 per week in rent , and the expected future rent for this apartment is around $700 per week.
Outgoing per annum
O/c fees: Approx. $4,200 per annum
Water rate: Approx. $800 per annum
Council rate: Apporx. $865 per annum
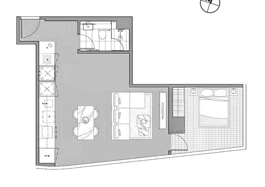
Perfectly positioned in the heart of Melbourne’s CBD, this 1-bedroom, 1-bathroom residence at UNO offers a rare combination of lifestyle convenience and strong investment potential. With a practical square layout, generous internal proportions and premium finishes, Apartment 1105 is an outstanding choice for both owner-occupiers and savvy investors.
Key Features
Well-designed 1-bedroom floorplan with excellent natural light
Contemporary bathroom with quality fixtures and finishes
Open-plan living and dining with functional square layout
Modern kitchen with stone benchtops and quality appliances
Secure entry, intercom and concierge service
Premium Building Amenities
Indoor heated pool, spa, sauna and steam room
Fully equipped gym, yoga and barre studio
Sky garden, BBQ terrace and private dining rooms
Games lounge, entertainment spaces and study areas
Unbeatable Location
Situated within the free tram zone for ultimate CBD convenience
Short walk to Melbourne Central, RMIT University and Queen Victoria Market
Easy access to University of Melbourne, Flagstaff Gardens and major precincts
Surrounded by cafés, restaurants, shopping and lifestyle options
Investment Appeal
High rental demand in one of Melbourne’s most prestigious towers
Strong yield potential for investors
Ideal city pad for professionals and students
This apartment combines lifestyle, location and return on investment in a building renowned for luxury and convenience.
